Baugebiet „Erweiterung des Siedlungsbereiches Fährenkamp“, Stadt Selm

Kurzbeschreibung:

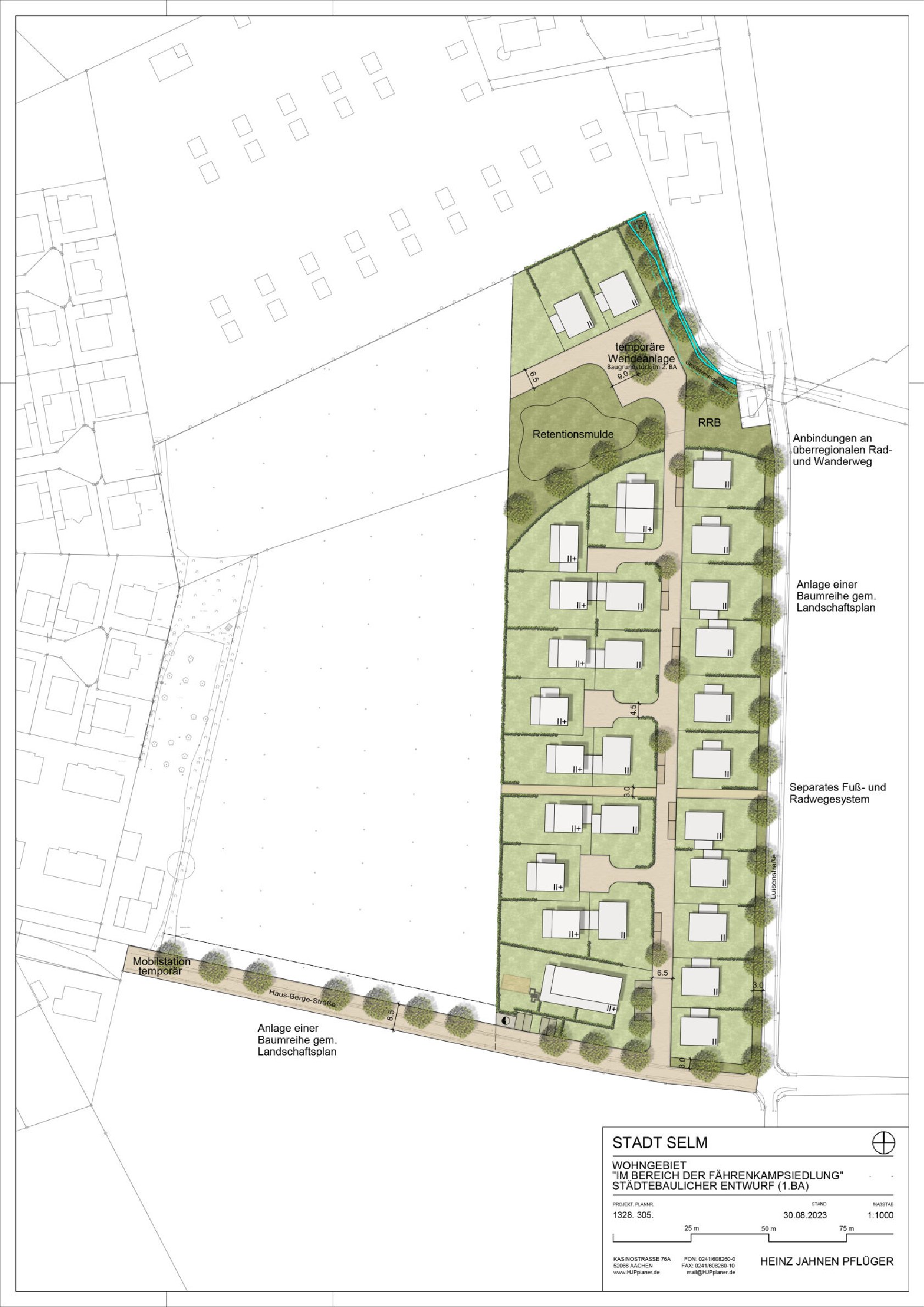
  • Die insgesamt zu entwickelnde Fläche wurde auf zwei zeitlich nacheinander zu realisierende Bauabschnitte gesplittet. Durch die im Parallelverfahren in den Jahren 2023 und 2024 durchgeführte Flächennutzungsplanänderung wurde die planungsrechtliche Umsetzung beider Bauabschnitte vorbereitet.
  • Der Bebauungsplan für den 1. Bauabschnitt wurde Mitte des Jahres 2024 rechtsverbindlich.
  • Im ersten Bauabschnitt, bestehend aus zwei Eigentümerparteien, wurden auf rd. 2,3 ha ca. 28 Einzel- und Doppelhausgrundstücke sowie 1 Mehrfamilienhausparzelle entwickelt.
  • Die Erschließungsmaßnahmen des Vorstufen-/Erstausbaus wurden von August 2024 bis Mai 2025 durchgeführt, der Endausbau der Straßen, Wege und Plätze erfolgt zu gegebener Zeit in Abhängigkeit vom Hochbaufortschritt.
  • Organisation der Grundstücksvermarktung und -veräußerung erfolgt durch die Grundstückseigentümerparteien selbst.
  • Die Städtebauliche Planung erfolgte bei diesem Projekt in Arbeitsgemeinschaft mit dem Aachener Planungsbüro HJPplan+.

Bei weiterem Informationsbedarf setzen Sie sich gerne mit uns in Verbindung.