Auf der Ruhr 99b | 50999 Köln
Telefon: 02236 3210250
mail@pe-strauss.de
www.pe-strauss.de
Überblick / Auswahl
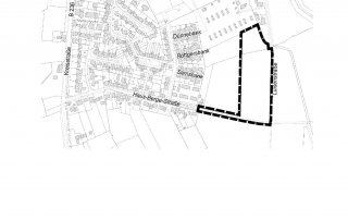
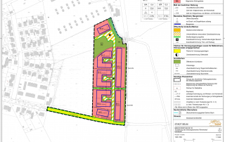
Baugebiet „Erweiterung des Siedlungsbereiches Fährenkamp“, Stadt Selm, NRW
Baugebiet „Erweiterung des Siedlungsbereiches Fährenkamp“, Stadt Selm Kurzbeschreibung: Die insgesamt zu entwickelnde Fläche wurde auf zwei zeitlich nacheinander zu realisierende Bauabschnitte gesplittet. Durch die im Parallelverfahren in den Jahren 2023 und 2024 durchgeführte Flächennutzungsplanänderung wurde [...]
Baugebiet „Wohnquartier Baaken“, Stadt Werne, NRW
Baugebiet „Wohnquartier Baaken“, Stadt Werne Kurzbeschreibung: Dieses knapp 2,5 ha große Allgemeine Wohngebiet wurde in den Jahren 2019 bis 2021 für eine örtliche Grundstücksgesellschaft entwickelt und geplant. Der Bebauungsplan wurde im September 2021 als Satzung [...]
Baugebiet „Nesberg“, Stadt Haltern am See, NRW
Baugebiet „Nesberg“, Stadt Haltern am See Kurzbeschreibung: Gemeinsam mit der Flächenentwicklungsgesellschaft Haltern am See, einer 100-prozentigen Tochter der Stadtwerke Haltern am See, wurde das schon viele Jahre im Flächennutzungsplan der Stadt vorgesehene Baugebiet ab dem [...]
Baugebiet „Wohnquartier Neuenkamp“, Stadt Selm (Bork), NRW
Baugebiet „Wohnquartier Neuenkamp“, Stadt Selm (Bork) Kurzbeschreibung: Es handelt sich hier um die Vorbereitung, Planung, Entwicklung und Realisierung eines Baugebietes für Wohnen und nicht wesentlich störendes Gewerbe im Ortsteil Bork der Stadt Selm, und zwar [...]
Baugebiet „Wohnen am Auenpark“, Stadt Selm, NRW
Baugebiet „Wohnen am Auenpark“, Stadt Selm Kurzbeschreibung: Von Ende des Jahres 2017 bis Mitte des Jahres 2018 wurde von der Stadt Selm als weiterer Baustein des Projektes „Aktive Mitte Selm“ der Regionale 2016 der städtebauliche [...]
„Wohnpark an den Höhen“ (Ehemaliges Süchtelner Höhenbad), Stadt Viersen (Süchteln), NRW
"Wohnpark an den Höhen" (Ehemaliges Süchtelner Höhenbad), Stadt Viersen (Süchteln) Kurzbeschreibung: Koordinierung und Begleitung sämtlicher Schritte zur Planung und Erschließung eines Allgemeinen Wohngebietes im Bereich des ehemaligen Hallenbades im Stadtteil Süchteln der Stadt Viersen, [...]





