Baugebiet „Nesberg“, Stadt Haltern am See

Kurzbeschreibung:

  • Gemeinsam mit der Flächenentwicklungsgesellschaft Haltern am See, einer 100-prozentigen Tochter der Stadtwerke Haltern am See, wurde das schon viele Jahre im Flächennutzungsplan der Stadt vorgesehene Baugebiet ab dem Jahre 2019 konkret angegangen. Dazu mussten rd. 50 Einzelparteien (mit diversen Erben- und Eigentümergemeinschaften) für das Projekt gewonnen werden.
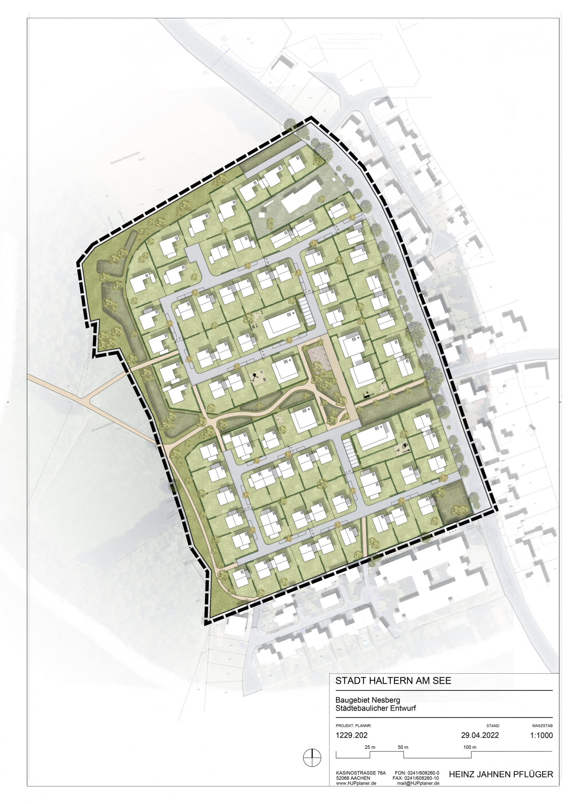
  • Der Bebauungsplan für das rd. 6,5 ha große am nordwestlichen Stadtrand von Haltern am See gelegene Allgemeine Wohngebiet, im Regelverfahren nach § 2 BauGB durchgeführt, wurde im Herbst 2022 beschlossen.
  • Etwa 80 Grundstücke in einer Größe von im Mittel zwischen 350 und 600 qm für zweigeschossige Einzel- und Doppelhäuser sowie 6 zwei- bis dreigeschossige Mehrfamilienhausgrundstücke, Letztere mit bis zu 8 Wohneinheiten, wurden realisiert.
  • Die Erschließungsmaßnahmen des Vorstufen-/Erstausbaus wurden von Mai bis Dezember 2023 durchgeführt, der Endausbau der Straßen, Wege und Plätze erfolgt in Abhängigkeit vom Hochbaufortschritt.
  • Organisation der Grundstücksvermarktung und -veräußerung erfolgen durch die jeweiligen Grundstückseigentümerinnen und -eigentümer selbst.
  • Die Städtebauliche Planung erfolgte bei diesem Projekt in Arbeitsgemeinschaft mit dem Aachener Planungsbüro HJPplan+.

Bei weiterem Informationsbedarf setzen Sie sich gerne mit uns in Verbindung.